755 North Pioneer Road on Shagawa Lake
Planning & Zoning Commission meeting on Wed, April 15, 2026 – 5:30 pm
Flash! In response to this post, we were told Sandy Point used to be a sacred indigenous annual gathering site. They said this area should be designated and protected as a natural site if not more. The Ely Park & Recreation Board, The Heritage Preservation Commission, P&Z Commission, and The Steering Committee for Land Use and Comprehensive Plan Review should set up and discuss how Ely can best set aside potential and actual birding and historical sites.



Who cares if this proposed beach club is right next to good area for bird watching? There are no protections for migrating birds in Ely. Who in their right mind would build or allow a beach club right next to an established bird watching area? Oh, that’s right. Sandy Point is not an “official” bird watching area. Despite locals knowing and gathering there to watch birds.
Ely does not have adequate recognition, signage or other protections for birds or birders. There’s nothing in the Land Use or Comprehensive Plan to respect or protect animal habitats. The Tourism Bureau doesn’t mention birding as something to do within Ely. There’s nothing in the 2026 Chamber of Commerce Business and Visitor Guide specifically mentioning Miners Lake or Shagawa Lake as bird viewing areas. Silence. Intentional silence to promote human development, especially interfering human development. Ely does not have signage or other protections for birds or birders. There’s nothing in the Land Use or Comprehensive Plan to respect or protect animal habitats.

The agenda and meeting packet for Planning and Zoning (PZ) Commission meetings are usually posted on the City website a few days before their meeting: https://www.ely.mn.us/pzmeetings. You can find the link on the City Government website: https://www.ely.mn.us/government.
There might be last minute changes or additions, so always check the table right inside Council Chambers or wherever PZ meeting is scheduled.

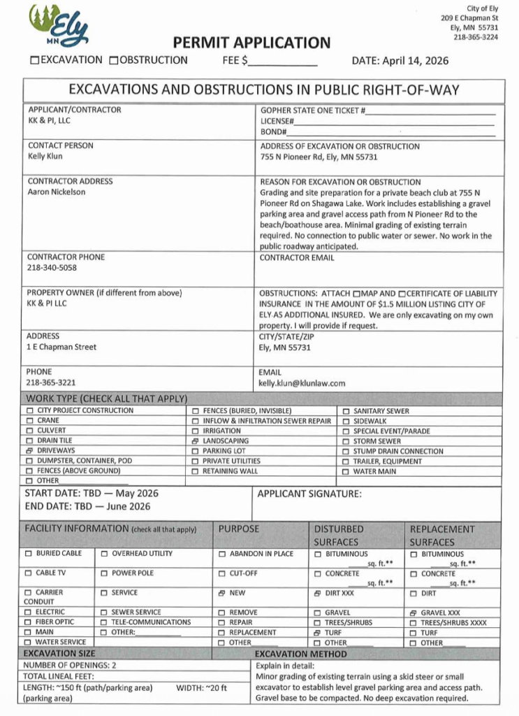
Under New Business, it appears KK & PI, LLC are applying for a permit to build a private beach club at 755 North Pioneer Road on Shagawa Lake. There is nothing nefarious about this, but it is interesting how lake shorelines are developed for human entertainment purposes and how so little time, money and energy are spent to maintain, preserve, protect or even expand natural habitat during times of climate change and human encroachment. Were are the backup plans, Plans C or D, for loss of animal and plant habitat?
Under New Business, it appears KK & PI, LLC are applying for a permit to build a private beach club at 755 North Pioneer Road on Shagawa Lake. There is nothing nefarious about this, but it is interesting how lake shorelines are developed for human entertainment purposes and how so little time, money and energy are spent to maintain, preserve, protect or even expand natural habitat during times of climate change and human encroachment. Were are the backup plans, Plans C or D, for loss of animal and plant habitat?
Remember Planning & Zoning has been making many revisions to its ordinances to allow more development along shorelines and green spaces. The changes were not solely directed at Miners Lake shoreline. For more info, search on our website (search box on top right or look through categories list along the left side).




For curious folks, who want to know who is KK & PI, LLC: check the right-hand column.
There are many residents and non-residents who are investing in activities and businesses that are intended to have more people and their $$ come to the Ely area. Our tourist and retail businesses need money to flow their way.
The big issue is: Where is the balance with Nature? How can there be a balance is Nature has no voice? And Climate Change is ignored? Where birders and environmentalists don’t exist?

Do not assume this is the last private or business enterprise that will be developed along the shorelines of Shagawa or Miners Lake!
The City of Ely, the Mayor, Council, Planning & Zoning Commission and the Steering Committee to update our Land Use and Comprehensive Plan want to build, build, build. Nothing will stop them. Birds are not real estate investors or developers. Money talks.
And while you are looking at the P&Z documents posted here, look over the rest of the packet AND other items posted on the City of Ely’s Government website: https://www.ely.mn.us/government

Leave a Reply